Areál pro poutníky

Areál pro poutníky

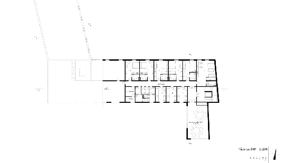
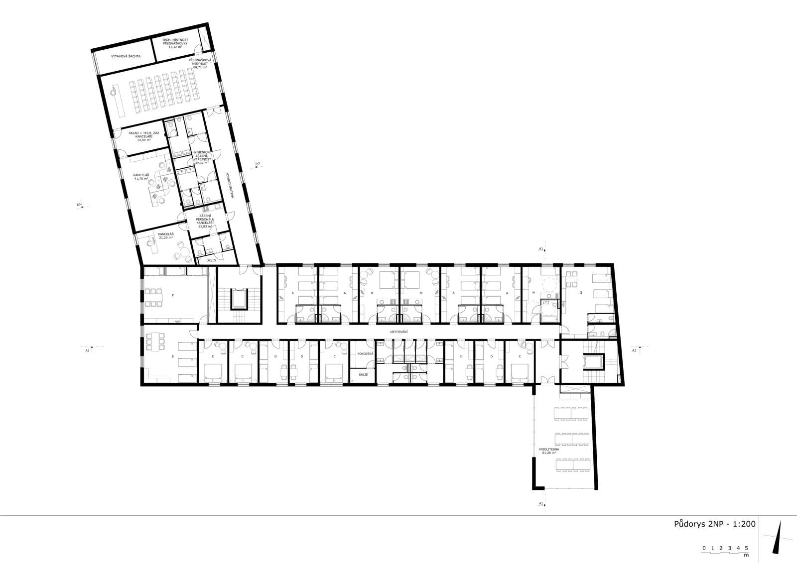
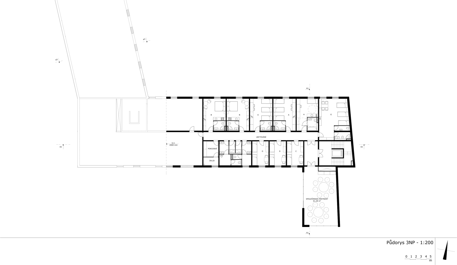
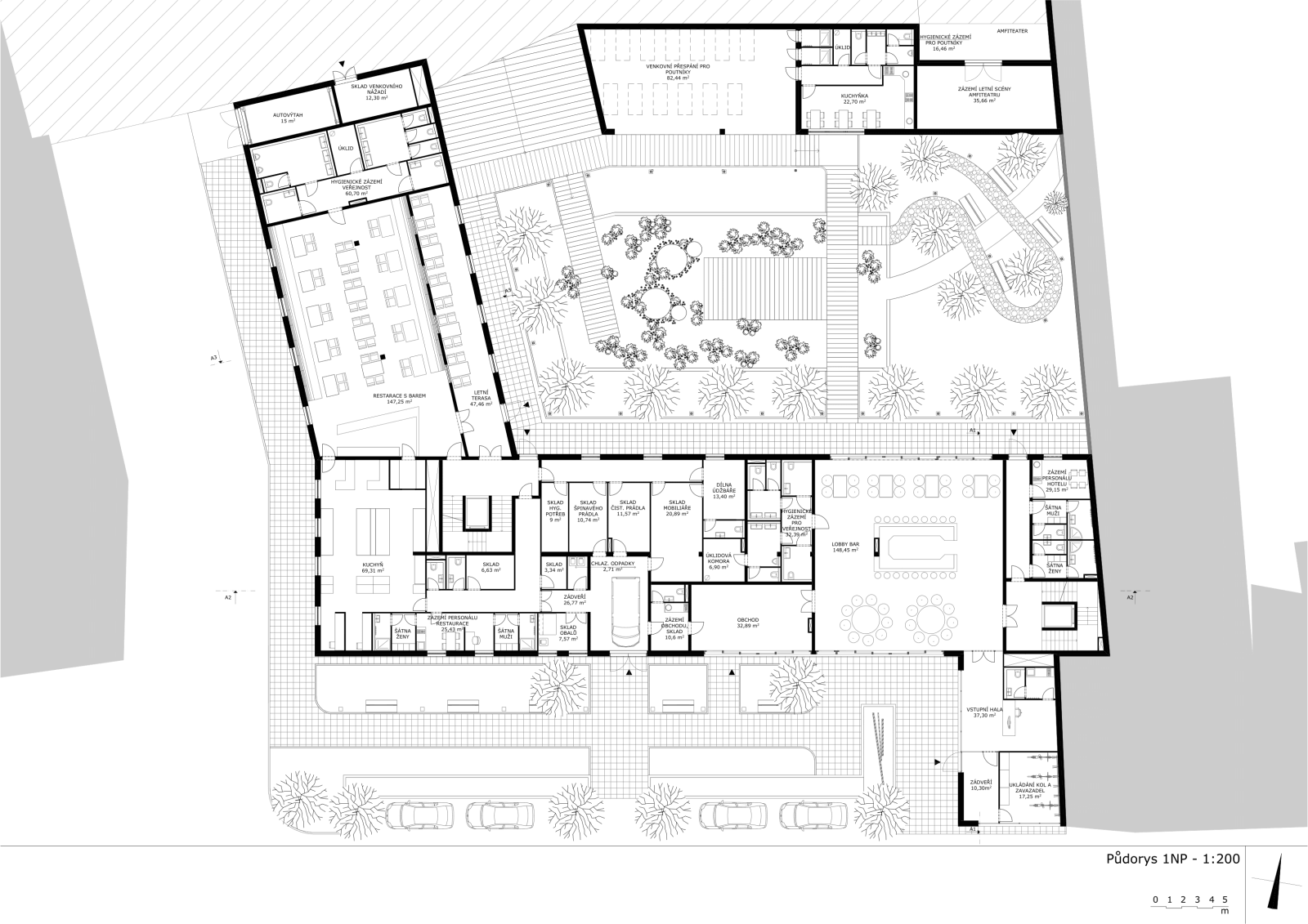
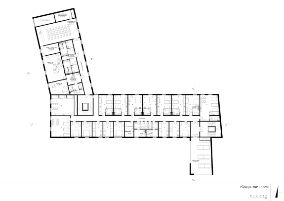
Studie poutního domu, původně části duchovního komplexu, který dále zahrnuje galerii, knihovnu, divadlo, amfiteátr a relaxační zahradu. Tento snadno přístupný, otevřený objekt je určený k setkávání, ubytování a meditacím. Součástí je restaurace s letní terasou i přednášková místnost, která umožňuje akce nejrůznějšího zaměření.

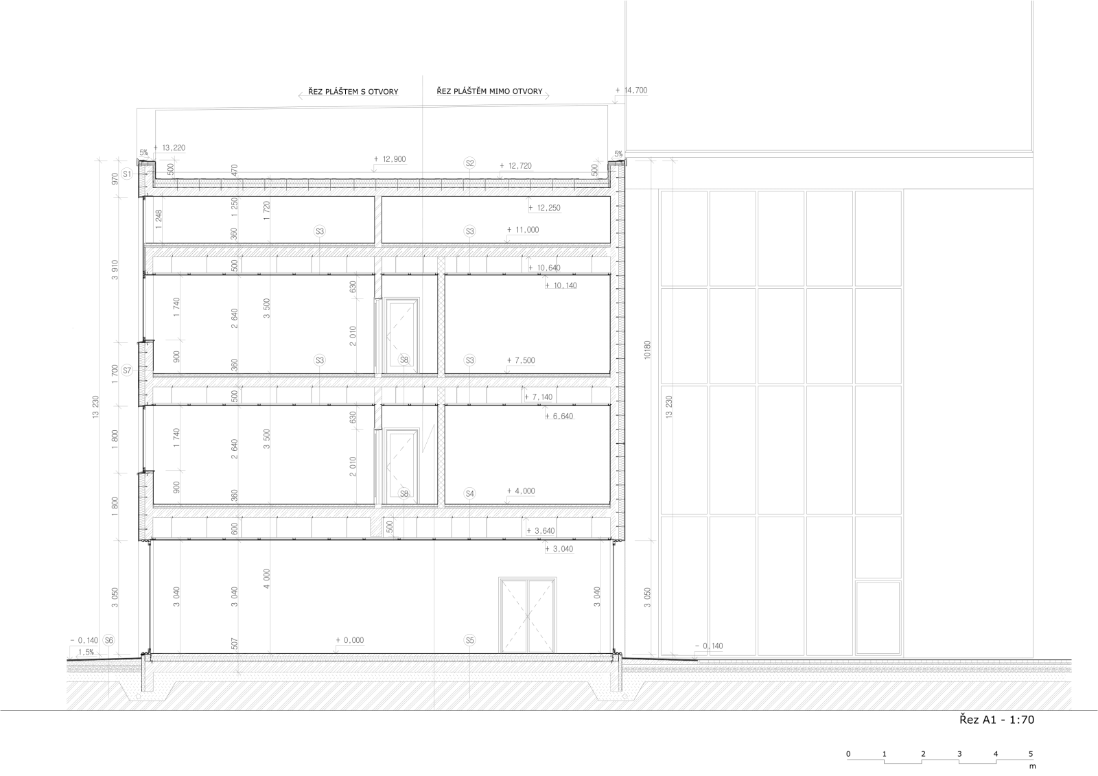
Moderní polyfunkční areál má být citlivě zasazený do historického centra města s množstvím věžiček. Studie proto využívá prvek moderních skosených věží. Duch staré rozmanité zástavby podporuje také nakloněná pultová střecha, která graduje směrem k věži s modlitebnami a vstupní halou.

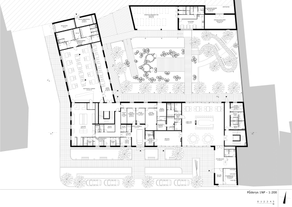
Dojem vstřícnosti a otevřenosti navozuje rozšířené nádvoří před budovou a zejména lobby bar, který je celý prosklený a je z něj vidět do zahrady. Budova tak skutečně zve návštěvníky dovnitř.

Zelená zahrada s vodními prvky vytváří atmosféru klidu a je důležitým motivem areálu. Odráží propletenec okolních uliček, které prodlužuje a dotváří. Obytná část, letní terasy a lobby bar jsou orientovány do zahrady, která skutečně symbolizuje vnitřní mír.

Celý objekt je řešen bezbariérově a pamatuje i na parkování. Kámen jako tradiční materiál na fasádě stavby respektuje styl okolí.